Entwerfen II (Semester 2)
Gruppenarbeit mit Anna-Lena Meier, Betreut durch  Prof. Guido Neubeck & Nele Kräher
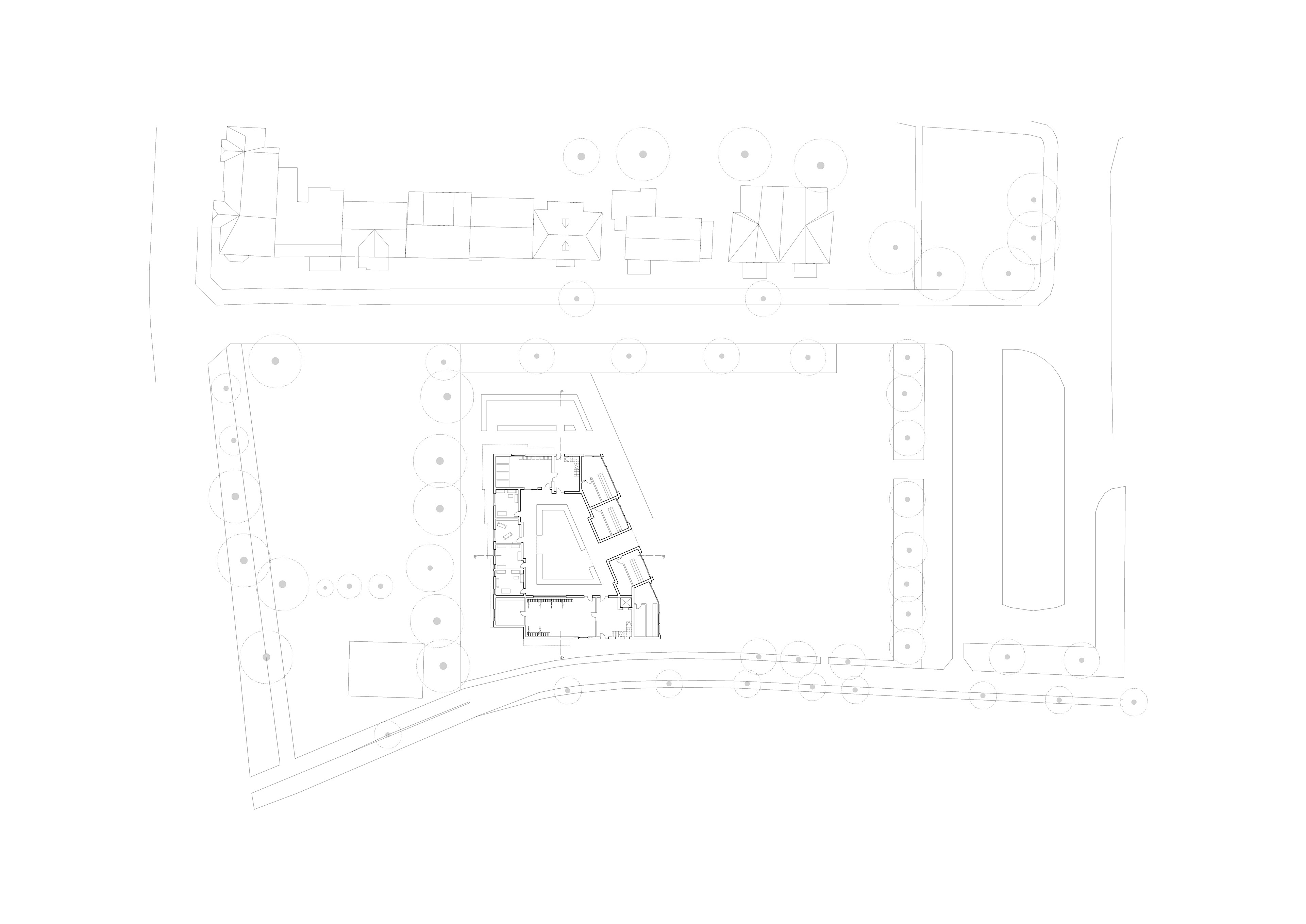
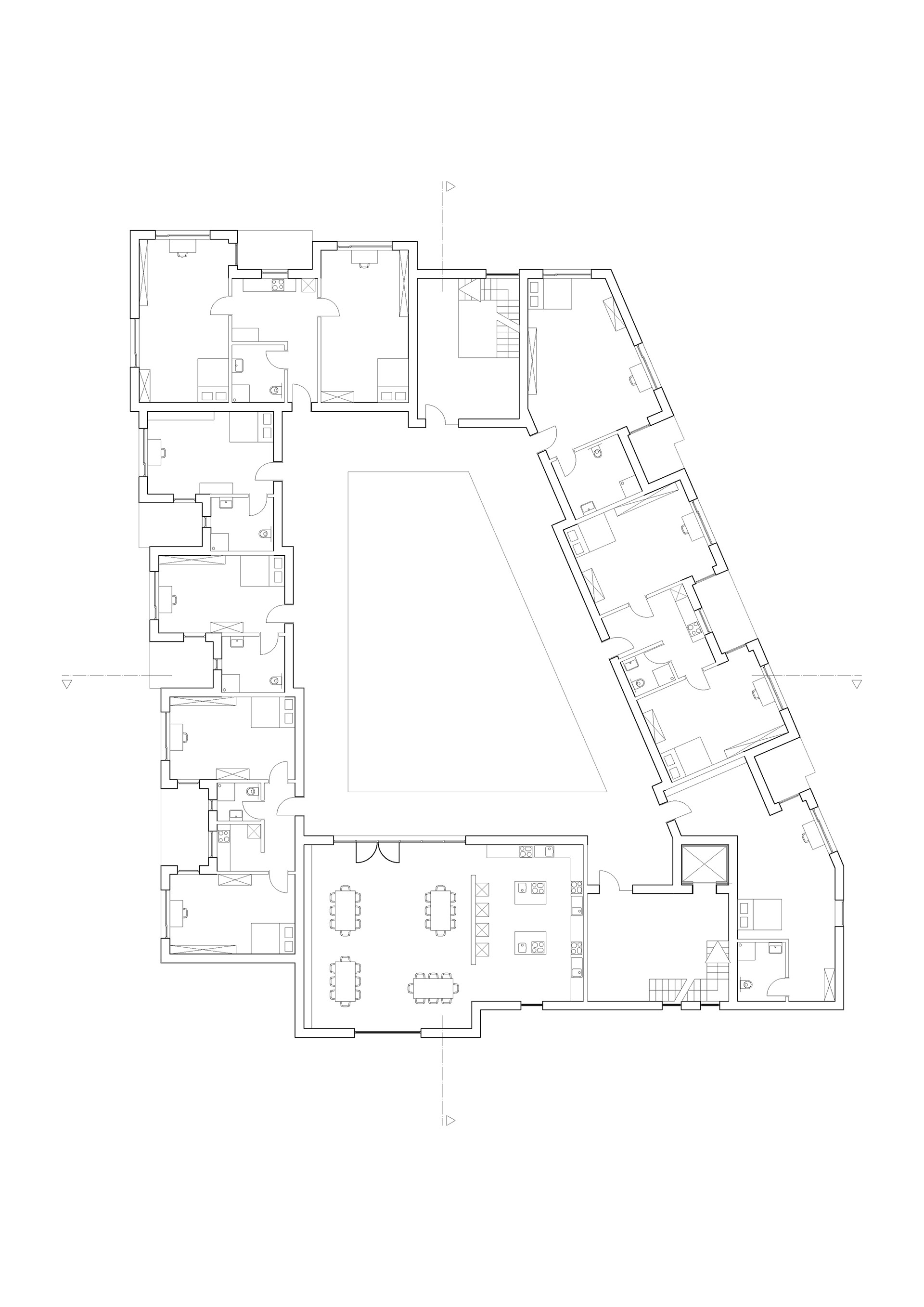
Zielsetzung des Entwurfes ist es auf der Marktfläche „Am Brink“ in Lübeck ein Studentenwohnheim zu schaffen, welches eine gemeinschaftliche Wohnatmosphäre erzeugt, sich durch die Volumetrie in die diverse Nachbarbebauung einfügt und das Fortbestehen des Wochenmarktes gewährleistet. Vom Platz aus wird der Innenhof des Wohnheims erschlossen, der das Kernstück der Nachbarschaft bildet. Umlaufende Laubengänge erschließen die Einzimmerwohnungen und die Wohngemeinschaften und laden durch ihre Größe zum Verweilen ein. Jedes Appartement hat Zugang zu einem Balkon, der durch die Gebäudekubatur best möglich belichtet wird. Gefördert wird die Gemeinschaft ebenso durch die geteilten Küchen und Aufenthaltsräume, welche zur viel befahrenen Ratzeburgerallee angeordnet sind.
Back to Top