Bachelorthesis: Conceptual Working, das Wohnen und Arbeiten in Zukunft
Grundlage der Aufgabe ist ein von dem Bundesverband Kalksandstein Industrie e.V. ausgelobter Wettbewerb, in dem der Baustoffhersteller nach neuen Konzepten für das Arbeiten und Wohnen in Zukunft sucht. In der Auslobungsbroschüre werden die Themen des Verschmelzens der unterschiedlichen Lebensbereiche (Arbeit/Wohnen/Freizeit), das Vermischen von digitalem und analogen Arbeiten und das Thema der Gemeinschaft angesprochen und in das Zentrum ihrer Erwartungen gesetzt. Es wird eine nachhaltige Architektur gesucht, die „mehr Zuhause ins Büro bringt, andererseits mehr Büro Zuhause“ ermöglicht. Das Wettbewerbsgebiet befindet sich in Hannover, im Stadtteil List und spiegelt das inhaltliche Thema und befindet sich im Spannungsfeld zwischen der südlich und westlich gelegenen Wohnbebauung und dem im Norden und Osten angrenzendem Industriegebiet. Prägend für den Ort sind die willkürlichen und unzusammenhängenden Solitäre, die zusammen keine Struktur oder eine städtische Atmosphäre im positiven Sinne bilden. Qualitäten des Grundstückes sind hingegen einerseits der in Teilen dichte Baumbestand, sowie die Atmosphäre, die durch eine eingeschossige U-förmige Hofbebauung mit Handwerksbetrieben und Wohnnutzung entsteht. Daraus geht hervor, dass die Planungen auf dem Wettbewerbsgebiet städtebaulich als ein Auftakt der Veränderung und Neu-strukturierung für den gesamten Block gesehen werden sollte.
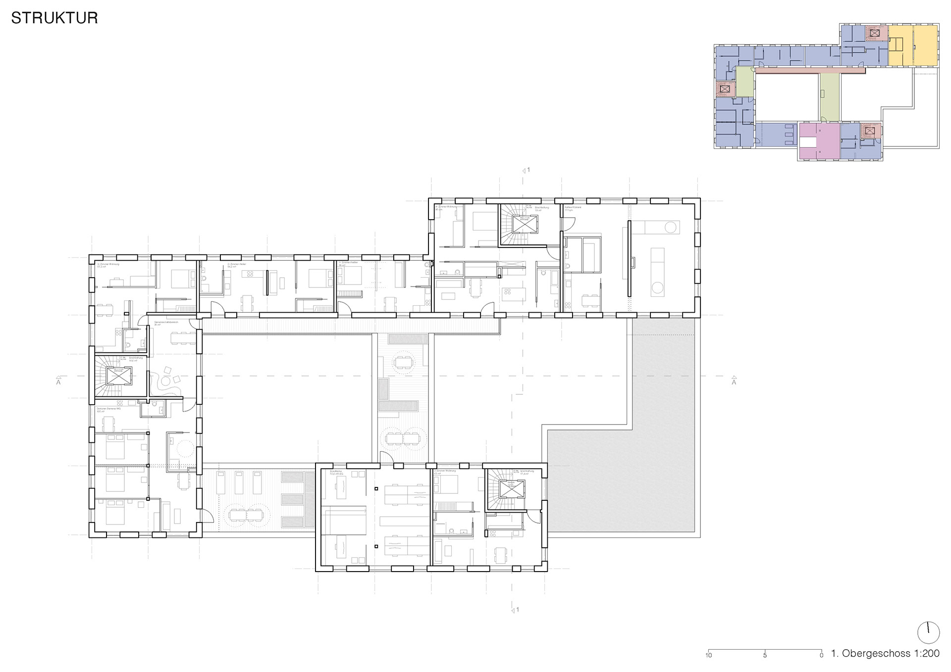
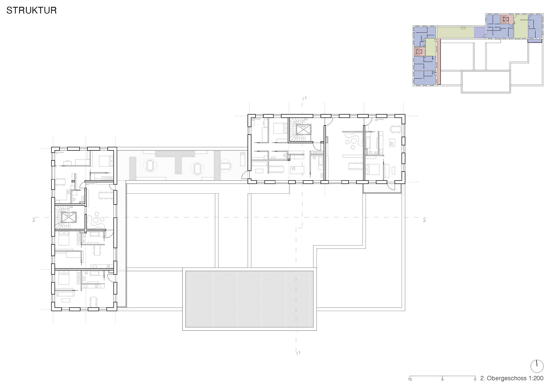
Für die neue, zukunftsfähige Architektur müssen Grundsätze und Haltungen definiert werden, wodurch diese Themen in eine bauliche Gestalt übersetzt werden können. In diesem Entwurf sind es die Forderungen nach: 1. Mehr Gemeinschaft: Die aktuelle Situation im Lockdown zeigt, dass heutige Architektur vielfach Einsamkeit in allen Altersklassen fördert: Es müssen Begegnungsräume für Kommunikation und der gemeinschaftlichen Nachbarschaft bei gleichzeitigem Erhalt des privaten Rückzugsortes geschaffen werden, um einer Anonymität entgegenzuwirken. 2. variable Nutzungsmischung: Die angestrebte Verschmelzung der Lebensbereiche bedingt eine Mischung von möglichst vielen Nutzungen, um viele verschiedene Formen des Arbeitens abzubilden und mit den anderen Bereichen des Lebens verschmelzen zu können. Damit wird gleichzeitig eine soziale Durchmischung der Neuplanung erreicht. 3. diverse digitale Arbeitsplatzangebote: Eine zukunftsfähige Architektur muss eine Antwort auf das digitale Remotearbeiten liefern und unterschiedliche Arbeitsplatzangebote mit unterschiedlichen Rahmenbedingungen anbieten, sodass alle Anforderungen an einen Remotearbeitsplatz erfüllt werden können. Aus diesen Thesen entsteht das Leitbild des Entwurfs: Der Hof als belebtes Mikrozentrum Das Mikrozentrum beschreibt eine Zusammengehörigkeit einer Einheit, die aus unterschiedlichen Nutzungen besteht, welche ein eigenes Zentrum in Form einer Innenhof Situation besitzt.
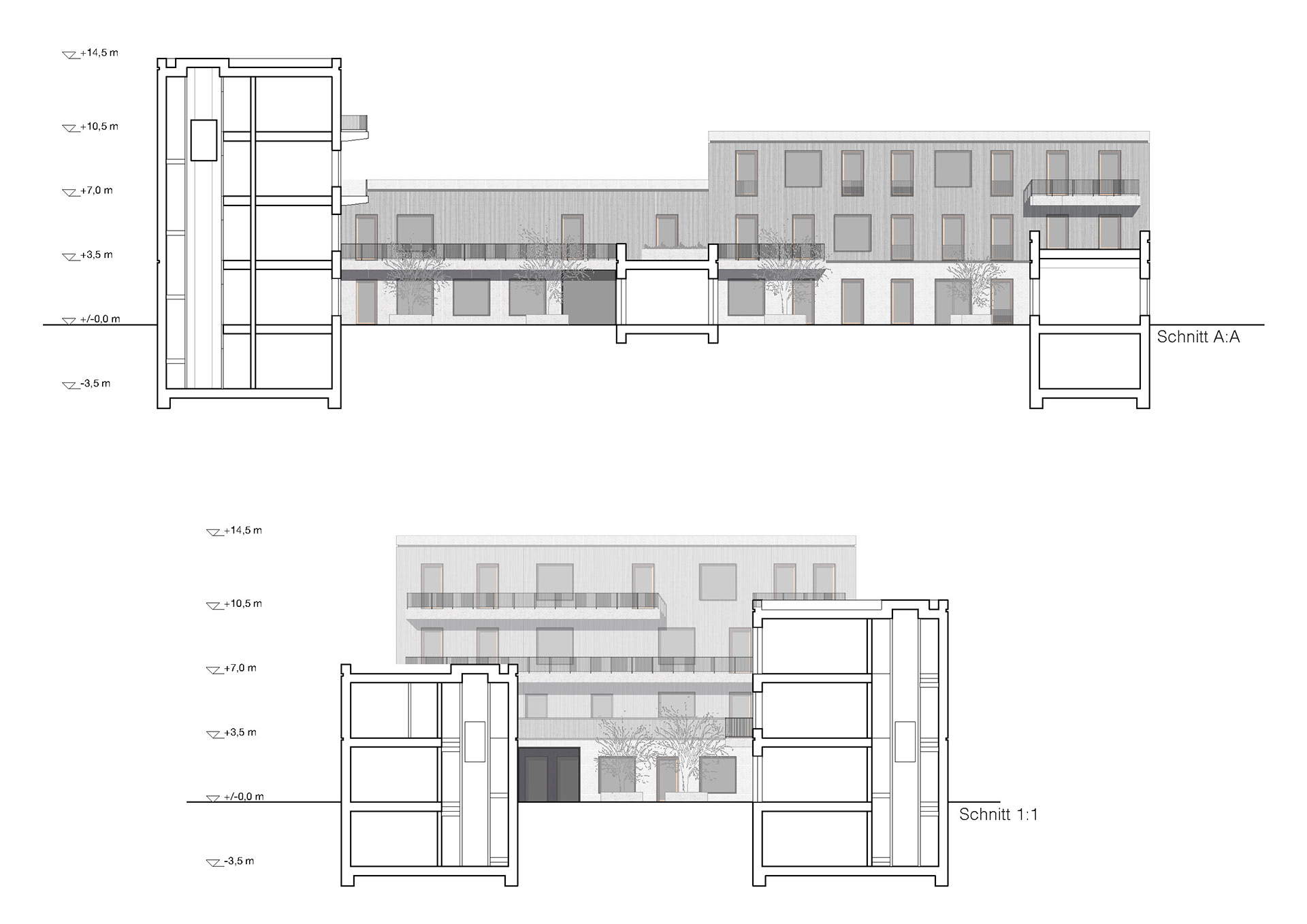
Auf diesem Leitbild beruht die grundsätzliche städtebauliche Gestalt des Entwurfes als eine Summe von Mikrozentren. Ebenso definiert der Entwurf das Wettbewerbsgebiet als ein erstes, alleinstehend mögliches Baufeld und erweitert dieses um ein 2. Baufeld im Westen auf dem aktuell eingeschossige Garagen stehen. Durch diese Erweiterung wird eine zusätzliche Wahrnehmbarkeit des ansonsten im Hintergrund stehenden Gebietes geschaffen. Um dieser Zurückgezogenheit entgegen zu wirken, ist eine großzügige Durchwegung des Gebietes angedacht. Diese Durchwegung und der Grundsatz, soviele Bestandsbäume wie möglich zu erhalten, lässt die Gebäude um unterschiedlich ausgeformte Plätze herum in ihrer Form entstehen. Der bauliche Bestand wird durch die Ausformung der städtebaulichen Figur mit in die Summe der Mikrozentren eingebunden. Dies erfolgt im Süden durch das Einbeziehen des Polizeigebäudes in eine Hofstruktur durch einen Anbau von zwei Seiten. Das Verwaltungsgebäude der Stiftung Berneburg wird sowohl durch eine geteilte zentrale Grünfläche in die Neuplanung integriert, sowie durch eine von der Höfe- und Ackerstraße sichtbare Einfassung.
Die zu Beginn aufgestellten Thesen finden eine Beantwortung in der Ausformung der einzelnen Baukörper. Durch das als Hof gestaltete Mikrozentrum wird eine Abstufung von Gemeinschaft möglich. Die Abstufung erfolgt von der Zusammengehörigkeit des öffentlich zugänglichen Hofes, über die Verbindung der einzelnen Häuser in Form von gemeinschaftlichen Terrassen, hin zu Gemeinschaftsbereichen, die für 3-4 Parteien innerhalb eines Hauses gedacht sind. Diese Bereiche sind für die direkte Nachbarschaft konzipiert und sind als Erweiterung des Wohnbereiches der privaten Wohnung gedacht. Durch die Abstufung und die damit einhergehende Überschau- und Planbarkeit der Begegnungen ist es möglich sicherzustellen, dass diese Bereiche tatsächlich gemeinschaftlich genutzt werden. Ebenso bietet eine Hofbebauung die geeignete Atmosphäre für eine Durchmischung von den Lebensbereichen des Wohnens und Arbeitens. Es entsteht eine Verzahnung der Nutzungen durch eine gleichberechtigte Nutzung des Hofes, durch die vertikale Nutzungsmischung, sowie durch geteilte Dachterrassen. Die Struktur des Tragwerkes, die Öffnungen und die technische Versorgung der Gebäude sind so ausgelegt, dass eine Umnutzung von Wohnflächen zu Gewerbe- oder Einzelhandelsflächen möglich ist. Für das Remotearbeiten werden verschiedene Angebote gemacht. Einerseits sind die Gemeinschaftsbereiche an den Wohnungen auch als Ort für das Arbeiten gedacht, als eine Fortführung des Home-office, da hier kurze Abstimmungswege durch die Bekanntheit der Nutzer vorhanden sind. Andererseits gibt es in jedem Mikrozentrum „shared-offices“, in dem per App kurz- und langfristig ein Arbeitsplatz gebucht werden kann. Hier werden sowohl Stillarbeits- und Teamarbeitsplätze mit geteilter Infrastruktur in Büroatmosphäre, sowie Konferenzräume angeboten.
Back to Top